Braemar Park Master Plan Implementation
The Braemar Park master plan was created in 2017 with the help of residents and community members. City Council approved the master plan on Jan. 3, 2018. On Nov. 8, 2022, voters approved via referendum a local option sales tax to allocate $8.1 million of project funding for implementation and next phases of the Braemar Park master plan. Project planning efforts are moving forward for completing final design and constructing improvements in the park. Additional stakeholder and public engagement will occur during preliminary and final design to integrate comment and feedback into the design process.
Current proposed trail and park improvements include:
- Walking trails
- Mountain bike trails
- Cross-country skiing trails
- Pickleball
- Courtney Fields baseball complex improvements
- Wayfinding signs and trail connections
- Natural resource restoration
- Improved parking and access to Braemar Golf Course, Braemar Arena, and Courtney Fields
The Braemar Park master plan was created in 2017 with the help of residents and community members. City Council approved the master plan on Jan. 3, 2018. On Nov. 8, 2022, voters approved via referendum a local option sales tax to allocate $8.1 million of project funding for implementation and next phases of the Braemar Park master plan. Project planning efforts are moving forward for completing final design and constructing improvements in the park. Additional stakeholder and public engagement will occur during preliminary and final design to integrate comment and feedback into the design process.
Current proposed trail and park improvements include:
- Walking trails
- Mountain bike trails
- Cross-country skiing trails
- Pickleball
- Courtney Fields baseball complex improvements
- Wayfinding signs and trail connections
- Natural resource restoration
- Improved parking and access to Braemar Golf Course, Braemar Arena, and Courtney Fields
-
Braemar Park Site Improvements at Braemar Dome Update
Share Braemar Park Site Improvements at Braemar Dome Update on Facebook Share Braemar Park Site Improvements at Braemar Dome Update on Twitter Share Braemar Park Site Improvements at Braemar Dome Update on Linkedin Email Braemar Park Site Improvements at Braemar Dome Update link
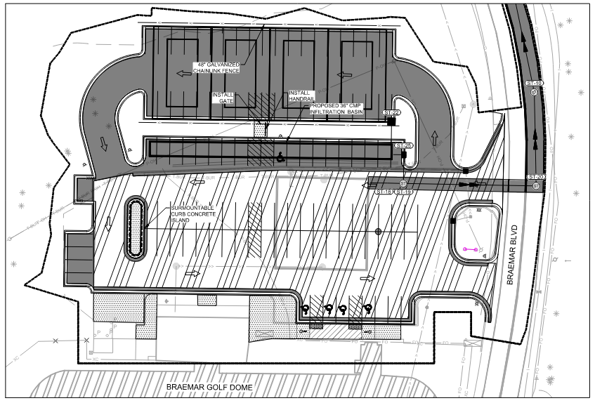
Staff continues to work with designers to integrate and implement Master Plan features and elements. The next phase that is ready for implementation is the expansion of the parking area at the Braemar Golf Dome. This expansion will increase safety for Hilary Lane and Golf Dome and Trail users. This will help alleviate on street parking pressures and improve sightlines and circulation. The expansion of hard surface will also serve to incorporate a new seasonal pickleball practice space. This space convert the 38 space expansion into 4 pickleball practice courts for use May-October. The expansion will also serve as a trailhead for the new hiking and biking trails in the summer. This project is working in conjunction with other master plan elements such as natural resources and reforestation goals, as well as stormwater and Braemar Blvd/ Hilary Lane future improvements. City Council will consider the first phase of preconstruction work for implementation on March 17th with a tree removal package. Construction would begin after the Dome closes in May. A construction package will be brought to council for approvals later this spring.
Staff continues to work with designers to integrate and implement Master Plan features and elements. The next phase that is ready for implementation is the expansion of the parking area at the Braemar Golf Dome. This expansion will increase safety for Hilary Lane and Golf Dome and Trail users. This will help alleviate on street parking pressures and improve sightlines and circulation. The expansion of hard surface will also serve to incorporate a new seasonal pickleball practice space. This space convert the 38 space expansion into 4 pickleball practice courts for use May-October. The expansion will also serve as a trailhead for the new hiking and biking trails in the summer. This project is working in conjunction with other master plan elements such as natural resources and reforestation goals, as well as stormwater and Braemar Blvd/ Hilary Lane future improvements. City Council will consider the first phase of preconstruction work for implementation on March 17th with a tree removal package. Construction would begin after the Dome closes in May. A construction package will be brought to council for approvals later this spring.
-
Winter Recreation Trails OPEN
Share Winter Recreation Trails OPEN on Facebook Share Winter Recreation Trails OPEN on Twitter Share Winter Recreation Trails OPEN on Linkedin Email Winter Recreation Trails OPEN link
Braemar Park's Trails are open for winter recreation. Thanks to a great basecoat of snow Braemar Trails are open for users.
Cross Country Skiers: A 5k or 2 mile loop is open for both Classical and Skate skiers. A 12 foot groomed trail is available for skate skiers and a 6 foot trail with tracks is available for classical skiers.
Walkers: A 4 foot trail has been snow groomed for walkers that covers much of the course leaving from the south end of the parking lot. Paved trails are also cleared along Hilary lane and link with our Citywide sidewalk system. Please keep off ski trails and follow City-wide leash laws.
Snowshoers: Snowshoeing is encouraged on our soft surface hiking trails that goes throughout the hills around the park. Snowshoers are also welcome to use mountain bike trails but should be aware it is a shared trail in the winter. Please stay off ski trails and areas golf course areas not designated as trails.
Fat tire bikers: Mountain biking trails are open for fat tire bikers with the exception of the black jumpline trail. Please keep in mind these are not groomed trails and are shared in the winter to snowshoers. No bikes are allowed on golf course.
WE ARE CURRENTLY UPDATING MAPS AND SIGNAGE, WE WILL POST ADDITIONAL TRAIL MAPS.
Braemar Park's Trails are open for winter recreation. Thanks to a great basecoat of snow Braemar Trails are open for users.
Cross Country Skiers: A 5k or 2 mile loop is open for both Classical and Skate skiers. A 12 foot groomed trail is available for skate skiers and a 6 foot trail with tracks is available for classical skiers.
Walkers: A 4 foot trail has been snow groomed for walkers that covers much of the course leaving from the south end of the parking lot. Paved trails are also cleared along Hilary lane and link with our Citywide sidewalk system. Please keep off ski trails and follow City-wide leash laws.
Snowshoers: Snowshoeing is encouraged on our soft surface hiking trails that goes throughout the hills around the park. Snowshoers are also welcome to use mountain bike trails but should be aware it is a shared trail in the winter. Please stay off ski trails and areas golf course areas not designated as trails.
Fat tire bikers: Mountain biking trails are open for fat tire bikers with the exception of the black jumpline trail. Please keep in mind these are not groomed trails and are shared in the winter to snowshoers. No bikes are allowed on golf course.
WE ARE CURRENTLY UPDATING MAPS AND SIGNAGE, WE WILL POST ADDITIONAL TRAIL MAPS.
-
Arbor Day Thank You
Share Arbor Day Thank You on Facebook Share Arbor Day Thank You on Twitter Share Arbor Day Thank You on Linkedin Email Arbor Day Thank You link
Thank you to all the volunteers that helped on Arbor Day. We were able to plant over 200 trees to add to restoration and future canopy and habitat at Braemar Park. A great group of volunteers helped us to enhance our Eastern Trail border off Gleason and contributed greatly to our future canopy and trail habitat.
Thanks to all our volunteers
Thank you to all the volunteers that helped on Arbor Day. We were able to plant over 200 trees to add to restoration and future canopy and habitat at Braemar Park. A great group of volunteers helped us to enhance our Eastern Trail border off Gleason and contributed greatly to our future canopy and trail habitat.
Thanks to all our volunteers
-
Arbor Day Event
Share Arbor Day Event on Facebook Share Arbor Day Event on Twitter Share Arbor Day Event on Linkedin Email Arbor Day Event link
The annual Arbor Day celebration and tree planting comes to Braemar Golf Course this year to enhance the natural areas around the courses.
- Volunteers of all ages are welcome to join the celebration 10 a.m. to 2 p.m. Friday, April 25. Those who volunteer are asked to meet in the courtyard area next to the Braemar Golf Course Clubhouse, 6364 John Harris Drive.
- Park Maintenance staff will demonstrate how to properly plant a tree, then divide the volunteers into groups that will fan out across the area to plant more trees.
- Prior to the event, Park Maintenance will use an auger to break up the soil at the planting spots, so no heavy digging will be required. Shovels and other equipment will be provided.
- Volunteers should bring gloves and wear closed-toed shoes and clothes they don’t mind getting dirty. Bring a reusable water bottle to stay hydrated.
Volunteers are asked to register in advance at EdinaMN.gov/ArborDay to help plan the needed supplies and groups. Walk-up volunteers can register at the event.
Food and beverages will be available for purchase. A limited number of free tree saplings will be handed out so volunteers can plant a tree in their own yards.
The annual Arbor Day celebration and tree planting comes to Braemar Golf Course this year to enhance the natural areas around the courses.
- Volunteers of all ages are welcome to join the celebration 10 a.m. to 2 p.m. Friday, April 25. Those who volunteer are asked to meet in the courtyard area next to the Braemar Golf Course Clubhouse, 6364 John Harris Drive.
- Park Maintenance staff will demonstrate how to properly plant a tree, then divide the volunteers into groups that will fan out across the area to plant more trees.
- Prior to the event, Park Maintenance will use an auger to break up the soil at the planting spots, so no heavy digging will be required. Shovels and other equipment will be provided.
- Volunteers should bring gloves and wear closed-toed shoes and clothes they don’t mind getting dirty. Bring a reusable water bottle to stay hydrated.
Volunteers are asked to register in advance at EdinaMN.gov/ArborDay to help plan the needed supplies and groups. Walk-up volunteers can register at the event.
Food and beverages will be available for purchase. A limited number of free tree saplings will be handed out so volunteers can plant a tree in their own yards.
-
Spring fever
Share Spring fever on Facebook Share Spring fever on Twitter Share Spring fever on Linkedin Email Spring fever link
Warmer weathers have us dreaming of summer and trails opening. The City has signed a multi year restoration contract with RES to maintain and enhance the natural areas in the hill around Braemar Park. This team is already hard at work removing additional areas of buckthorn and preparing for a season of invasive species management and restoration seeding to enhance and restore the woodland and oak savannas around the park.
At Courtney Fields contractor are still at work finishing safety netting and site work to prepare for the 2025 baseball season. The playground will also be completed this spring and available for use to visitors and neighborhood public. We will keep you updated and let you know when it is ready for play.
Warmer weathers have us dreaming of summer and trails opening. The City has signed a multi year restoration contract with RES to maintain and enhance the natural areas in the hill around Braemar Park. This team is already hard at work removing additional areas of buckthorn and preparing for a season of invasive species management and restoration seeding to enhance and restore the woodland and oak savannas around the park.
At Courtney Fields contractor are still at work finishing safety netting and site work to prepare for the 2025 baseball season. The playground will also be completed this spring and available for use to visitors and neighborhood public. We will keep you updated and let you know when it is ready for play.
-
Trail updates
Share Trail updates on Facebook Share Trail updates on Twitter Share Trail updates on Linkedin Email Trail updates link
Edina has partnered with MORC, Minnesota Off-Road Cyclists at Braemar Park Trails. MORC will help to support Edina with trail maintenance and improvements. Trail information can now be found at their website here. Trail closures can also be viewed on Trailbot or at MORC's website here for all MORC managed trails. Trail needs can be reported through Trailbot or Edina 311.
Edina has partnered with MORC, Minnesota Off-Road Cyclists at Braemar Park Trails. MORC will help to support Edina with trail maintenance and improvements. Trail information can now be found at their website here. Trail closures can also be viewed on Trailbot or at MORC's website here for all MORC managed trails. Trail needs can be reported through Trailbot or Edina 311.
-
Grand Opening Tomorrow!
Share Grand Opening Tomorrow! on Facebook Share Grand Opening Tomorrow! on Twitter Share Grand Opening Tomorrow! on Linkedin Email Grand Opening Tomorrow! link
Join us Wednesday September 4th at 5:00 pm at the Braemar Golf Dome and trail head for our Braemar Trails Grand Opening and Ribbon cutting. We will be thanking all those who supported the project from idea through completion. MORC, BORCA, Wolf Tooth Components, and Yardi will be on site. Take a hike or bike with us and celebrate the trails.
Join us Wednesday September 4th at 5:00 pm at the Braemar Golf Dome and trail head for our Braemar Trails Grand Opening and Ribbon cutting. We will be thanking all those who supported the project from idea through completion. MORC, BORCA, Wolf Tooth Components, and Yardi will be on site. Take a hike or bike with us and celebrate the trails.
-
Trails Partially OPENED
Share Trails Partially OPENED on Facebook Share Trails Partially OPENED on Twitter Share Trails Partially OPENED on Linkedin Email Trails Partially OPENED linkWest side trails are open! Thanks to Edina MTB team for your help clearing debris. Please be cautious riding for shifted debris and rutting on trails. Staff and contractors are working on East side.
West side trails are open! Thanks to Edina MTB team for your help clearing debris. Please be cautious riding for shifted debris and rutting on trails. Staff and contractors are working on East side.
-
NOTICE: NO THROTTLED E-BIKES ON TRAILS
Share NOTICE: NO THROTTLED E-BIKES ON TRAILS on Facebook Share NOTICE: NO THROTTLED E-BIKES ON TRAILS on Twitter Share NOTICE: NO THROTTLED E-BIKES ON TRAILS on Linkedin Email NOTICE: NO THROTTLED E-BIKES ON TRAILS link
Braemar Trails have been prohibited to motorized vehicles but the City has expanded that to also include Class 2 and Class 3 E- bikes.
The City of Edina has drafted an agreement for City approval on September 3rd with Minnesota Off -Road Cycling (MORC). To partner on trail maintenance and long term trail vision. To help support trail maintenance the City has decided to prohibit Class 2 and Class 3 E-bikes on Braemar trails. City staff has recorded damage and received reports of damage on trail system from these bikes. The aggressive tires and throttle speeds have contributed to erosion and feature integrity. The City will continue to allow Class 1 pedal assist E-bikes. The City made this decision to both support MORC's position and partnership as well as to promote long term sustainability of soft surface trail system.
Rules and Regulations will be posted at trail heads.
Braemar Trails have been prohibited to motorized vehicles but the City has expanded that to also include Class 2 and Class 3 E- bikes.
The City of Edina has drafted an agreement for City approval on September 3rd with Minnesota Off -Road Cycling (MORC). To partner on trail maintenance and long term trail vision. To help support trail maintenance the City has decided to prohibit Class 2 and Class 3 E-bikes on Braemar trails. City staff has recorded damage and received reports of damage on trail system from these bikes. The aggressive tires and throttle speeds have contributed to erosion and feature integrity. The City will continue to allow Class 1 pedal assist E-bikes. The City made this decision to both support MORC's position and partnership as well as to promote long term sustainability of soft surface trail system.
Rules and Regulations will be posted at trail heads.
-
Hiking Trails Map
Share Hiking Trails Map on Facebook Share Hiking Trails Map on Twitter Share Hiking Trails Map on Linkedin Email Hiking Trails Map link
The hiking and pedestrian trails are available for use at Braemar trails. These trails can be accessed from multiple points and link together with a shared use path on Braemar Blvd/Hilary Lane. Biking trails are still being worked on and are anticipated to open this week, weather dependent. Please stay on hiking trails at this time so contractors can continue to work on biking trails and restoration work on the site. A pedestrian trail map can be downloaded here.
The hiking and pedestrian trails are available for use at Braemar trails. These trails can be accessed from multiple points and link together with a shared use path on Braemar Blvd/Hilary Lane. Biking trails are still being worked on and are anticipated to open this week, weather dependent. Please stay on hiking trails at this time so contractors can continue to work on biking trails and restoration work on the site. A pedestrian trail map can be downloaded here.
Who's Listening
-
Director of Parks and Recreation
Email pvetter@edinamn.gov -
Assistant Director - Parks and Natural Resources
TSEmail tswenson@edinamn.gov -
Phone 9528260397 Email rdevries@edinamn.gov
Lifecycle
-
Community Engaged
Braemar Park Master Plan Implementation has finished this stage2017 City Staff, Stakeholders, and community members provided input and feedback to create a master plan for Braemar Park. See engagement log in documents for more information.
-
Master Plan Approved
Braemar Park Master Plan Implementation has finished this stageJanuary 3rd 2018, City Council approved Braemar Park Master Plan
-
Funding Identified
Braemar Park Master Plan Implementation has finished this stageNovember 2022 voters approved a referendum to allowed for local option sales tax revenue to be allocated to the implementation of Braemar Park master Plan.
-
Consultants hired and master plan concept designs are refined
Braemar Park Master Plan Implementation has finished this stageSpring 2023 consultants are hired to continue refining design concepts set forward in the approved master plan. Designer are engaged for Courtney Fields upgrades, trails, natural resources, and site improvements.
-
Community and Stakeholder Feedback
Braemar Park Master Plan Implementation has finished this stageAn open house for the community will be held September 6th from 4-7 at Braemar Backyard Rink. Staff and consultants will be on hand to answer questions and provide updates on project components. Feedback will also be collected about preliminary trail layouts and other master plan components. Feedback will also be collected on Better Together Edina.
-
Parks and Recreation Commission Review and Comment
Braemar Park Master Plan Implementation has finished this stageCommissioners will review and comment on preliminary trail layouts and concept design. Comments will be combined with community feedback and provided to City Council.
-
City Council 30% Design Update
Braemar Park Master Plan Implementation has finished this stageCity Council will receive a staff report and presentation of the refined Braemar Park master plan concepts. This will include Parks and Recreation Commissions comments as well as community feedback. Staff will present to City Council at a work session on October 17th, 2023
-
Natural Resources Restoration Phase 1
Braemar Park Master Plan Implementation has finished this stageBuckthorn and other target species removal was awarded to Landbridge Ecological for targeted areas. Future phases will include addition invasive removals, enhancements and plantings, and long term management.
-
Braemar Trails Enters Design Development
Braemar Park Master Plan Implementation has finished this stageBased on feedback collected from staff, stakeholders, community, commissioners, mayor and city council staff and consultants will progress into design development for the Braemar Trails project.
-
Braemar Trails Enters Construction Documents
Braemar Park Master Plan Implementation has finished this stage -
Braemar Trails Bid Packages are posted
Braemar Park Master Plan Implementation has finished this stage -
Biking and Hiking Trail Construction Begins
Braemar Park Master Plan Implementation has finished this stagePathfinder Trail Building has been awarded contract for trail building. The first phase of trails will be the eastern and western hillsides. The second phase will happen later this season or next and will include a shared trail boardwalk and connector through the south Braemar Park property by Nine Mile Creek.
-
Trails Open
Braemar Park Master Plan Implementation is currently at this stageHiking Trails and Biking Trails are Open!